172Hafif çelik yapılar, son yıllarda inşaat sektöründe popüler hale gelmiştir. Bu yapılar, geleneksel yapı yöntemlerine göre birçok avantaj sağlamaktadır. Özellikle ekonomik, hızlı ve çevre dostu olmaları nedeniyle tercih edilmektedir. 172 m² tek katlı hafif çelik yapılar, daha küçük aileler veya işletmeler için mükemmel bir seçenektir. Bu yapılar, hafif çelik çerçeve sistemleri kullanılarak inşa edilir. Bu sistemler, ağır ve karmaşık yapıların aksine daha hızlı ve kolay bir şekilde kurulabilir. Ayrıca, hafif çelik yapılar, dayanıklı ve uzun ömürlüdür.Hafif çelik yapılar, ekonomik olmaları nedeniyle de tercih edilir. Geleneksel yapı yöntemleriyle karşılaştırıldığında daha ucuzdur ve inşaat süresi daha kısadır. Ayrıca, bu yapılar, enerji verimliliği açısından da avantaj sağlar. Çelik, yüksek ısı iletkenliği nedeniyle ısıyı iyi bir şekilde iletebilir. Bu nedenle, hafif çelik yapılar, ısıtma ve soğutma maliyetlerinde tasarruf sağlar. Hafif çelik yapılar ayrıca çevre dostudur. Çelik, geri dönüştürülebilir bir malzemedir ve inşaat atıklarının azaltılmasına yardımcı olur. Ayrıca, çelik yapılar, enerji verimliliği nedeniyle çevre dostu bir seçenektir.172 m² tek katlı hafif çelik yapılar, birçok farklı amaç için kullanılabilir. Örneğin, ev, ofis, atölye, depo veya garaj olarak kullanılabilirler. Bu yapılar, müşterinin ihtiyaçlarına göre özelleştirilebilir ve farklı şekillerde tasarlanabilir. Sonuç olarak, 172 m² tek katlı hafif çelik yapılar, ekonomik, hızlı ve çevre dostu bir seçenektir. Bu yapılar, dayanıklı ve uzun ömürlüdür ve birçok farklı amaç için kullanılabilirler. Hafif çelik yapılar, inşaat sektöründe gelecekte daha da popüler hale gelecektir.
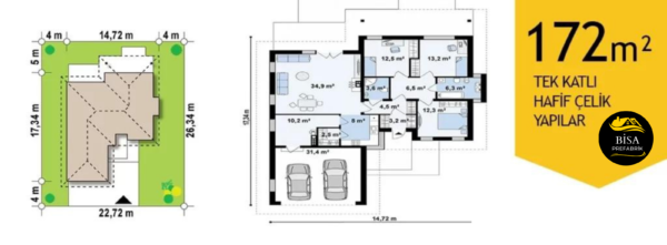
172 M² Tek Katlı Hafif Çelik Yapı
172 m² tek katlı hafif çelik yapılar, son dönemde popüler hale gelen modern yapı türlerindendir. Hafif çelik malzeme kullanarak tasarlanan ve inşa edilen bu tür yapılar, geleneksel inşaat yöntemlerine göre daha hızlı ve ekonomik bir şekilde inşa edilebilmektedir. 172 m² tek katlı hafif çelik yapılar, ofis, depo, showroom, mağaza, kafe ve hatta konut olarak da kullanılabilirler. Bu tür yapılarda kullanılan malzemeler, dayanıklı ve kaliteli olup, yapıların uzun ömürlü olmasını sağlamaktadır. Ayrıca, çelik malzeme ile inşa edilen yapıların depreme dayanıklı olması da avantajlarından biridir.





