Hafif çelik yapılar, son yıllarda inşaat sektöründe oldukça popüler hale gelmiştir. Bu yapılar, çelik profil ve levhaların birleştirilmesiyle oluşturulur ve hızlı bir şekilde kurulabilir. 128 m² tek katlı hafif çelik yapı, bu tür yapıların en yaygın örneklerinden biridir. 128 m² tek katlı hafif çelik yapı, genellikle 3 yatak odası, 1 salon, 1 mutfak ve 2 banyo içeren bir evdir. Bu yapılar, geleneksel yapılara göre daha hızlı ve kolay bir şekilde inşa edilebilir. Bunun nedeni, çelik yapıların fabrikalarda önceden hazırlanması ve inşaat sahasına getirilirken sadece birkaç parça halinde taşınmasıdır. Bu da inşaat süresini önemli ölçüde azaltır.Hafif çelik yapılar ayrıca dayanıklıdır ve depreme karşı daha dirençlidir. Çelik yapılar, yüksek mukavemetleri sayesinde yüksek rüzgar hızlarına ve aşırı hava koşullarına da dayanabilirler. Bu yapılar, yangına karşı da dayanıklıdır ve alevlerin yayılmasını önleyen özel kaplamalarla kaplanabilirler. 128 m² tek katlı hafif çelik yapıların bir diğer avantajı da enerji verimliliğidir. Çelik yapılar, yüksek yalıtım özellikleri sayesinde ısı kaybını önleyerek enerji tasarrufu sağlarlar. Ayrıca, çelik yapılar, çevre dostu malzemeler kullanılarak üretilebilir ve geri dönüştürülebilir özellikleri sayesinde de çevre için daha az zararlıdır.128 m² tek katlı hafif çelik yapılar, estetik açıdan da çekicidir. Bu yapılar, farklı renk ve doku seçenekleri ile kişiselleştirilebilir ve modern bir görünüm sağlarlar. Ayrıca, çelik yapılar, daha az bakım gerektirirler ve uzun ömürlüdürler. Sonuç olarak, 128 m² tek katlı hafif çelik yapılar, hızlı, dayanıklı, enerji verimli, çevre dostu ve estetik açıdan çekicidir. Bu yapılar, geleneksel yapılara göre birçok avantaj sağlar ve gelecekte inşaat sektöründe daha da yaygınlaşması beklenmektedir.
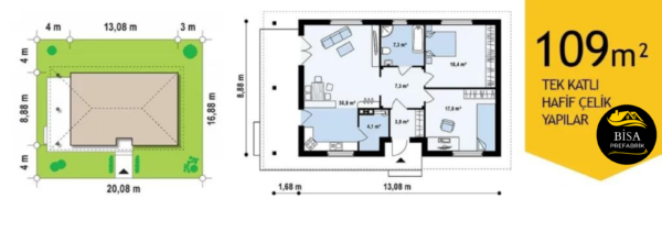
128 M² Tek Katlı Hafif Çelik Yapı
128 m² tek katlı hafif çelik yapılar, modern yapı teknolojileri kullanılarak tasarlanan ve inşa edilen yapı türlerinden biridir. Hafif çelik malzeme kullanarak tasarlanan ve inşa edilen bu tür yapılar, geleneksel inşaat yöntemlerine göre daha hızlı ve ekonomik bir şekilde inşa edilebilmektedir. 128 m² tek katlı hafif çelik yapılar, ofis, showroom, mağaza, kafe, depo ve hatta konut olarak da kullanılabilirler. Bu tür yapıların kullanımı, hafif ve dayanıklı malzemeler kullanıldığı için maliyet avantajının yanı sıra çevre dostu olmaları nedeniyle de tercih edilmektedir.






