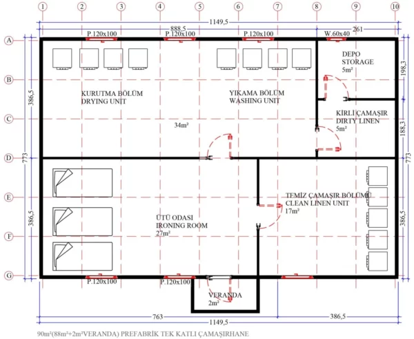
90 m² Çamaşırhane

90 m² prefabrik çamaşırhane, önceden üretilmiş ve montajı yapılmış bir çamaşırhane binasıdır. Prefabrik yapılar, fabrikalarda üretilen ve daha sonra inşaat alanına taşınan yapılar olarak tanımlanabilir. Bu tür yapılar, çeşitli amaçlar için kullanılabilmektedir ve çamaşırhaneler de bunlardan biridir. 90 m² prefabrik çamaşırhane, 90 metrekarelik bir alanda kurulmuş bir çamaşırhane binasıdır ve genellikle konut bölgelerinde veya üniversite kampuslarında bulunur. Bu tür prefabrik yapılar, hızlı bir şekilde kurulabilmesi, uygun fiyatlı olması ve taşınabilir olması nedeniyle tercih edilmektedir. Ayrıca, bu tür yapılar, geleneksel yapıların sağlayamayacağı esneklik ve özelleştirme seçenekleri sunar. İçinde çamaşır makinesi, kurutma makinesi, ütüleme alanı, katlama masası ve diğer çamaşırhane ekipmanları bulunabilir.

Prefabrik yapılar son yıllarda birçok sektörde kullanılmaktadır ve bunlardan biri de çamaşırhane sektörüdür. 90 m² prefabrik çamaşırhane, hızlı ve ekonomik bir şekilde inşa edilebilmesi nedeniyle tercih edilmektedir. Prefabrik yapılar, geleneksel yapılarla karşılaştırıldığında birçok avantaj sunarlar. Öncelikle, prefabrik yapılar hızlı bir şekilde inşa edilebildiği için zaman ve işgücü maliyetlerini düşürürler. Ayrıca, bu yapılar genellikle daha dayanıklıdır ve kolayca taşınabilirler.90 m² prefabrik çamaşırhane, çamaşırhane işletmeleri için ideal bir seçenektir. Bu yapı içinde çamaşır makineleri, kurutma makineleri, ütüleme makineleri ve diğer ekipmanlar için gerekli alanlar bulunmaktadır. Ayrıca, müşteriler için bekleme alanları ve personel için dinlenme alanları da tasarlanmıştır. Prefabrik çamaşırhaneler, özellikle yeni bir işletme açmak isteyenler için ideal bir çözüm olabilir.Bu yapılar, geleneksel yapılarla karşılaştırıldığında daha ekonomik ve hızlı bir şekilde inşa edilebilirler. Ayrıca, prefabrik yapılar daha kolay taşınabilir oldukları için işletme sahipleri, çamaşırhanelerini istedikleri yere taşıyabilirler. 90 m² prefabrik çamaşırhane, çamaşırhane işletmeleri için ekonomik ve işlevsel bir çözüm sunar. Bu yapı, müşterilerin ihtiyaçlarını karşılayacak şekilde tasarlanmıştır ve işletme sahiplerine birçok avantaj sağlar.