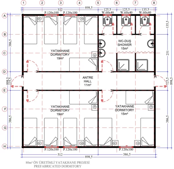
80 m² Prefabrik Yatakhane
80 m² prefabrik yatakhane, daha geniş bir alana sahip olan ve içerisinde yatak odaları, banyo ve tuvaletler bulunan bir prefabrik yapı çeşididir. Bu yapılar genellikle inşaat alanları, şantiyeler, askeri üsler ve kamp alanları gibi geçici konaklama ihtiyacı olan yerlerde kullanılır.






