Prefabrik yapılar, acil afet durumlarında hızlı ve etkili bir şekilde yanıt verebilmek amacıyla tercih edilen yapı türlerinden biridir. Bu amaçla tasarlanan 27 m² prefabrik acil afet binası, hızlı ve kolay montajı sayesinde acil durumlarda hızlıca kullanıma hazır hale getirilebilir. Bu prefabrik yapılar, deprem, sel gibi doğal afetlerin yanı sıra yangın, patlama, terör saldırısı gibi acil durumlarda da kullanılabilir. Ayrıca, sağlık merkezi, eğitim merkezi, barınma merkezi, ofis, depo gibi amaçlarla da kullanılabilir.27 m² prefabrik acil afet binası, dayanıklı malzemelerden yapılmıştır ve çevreye minimal etkisi vardır. Ayrıca, enerji verimli tasarımı sayesinde enerji tasarrufu sağlar. Prefabrik yapıların en büyük avantajı, konvansiyonel yapılarla karşılaştırıldığında çok daha kısa sürede inşa edilebilmeleridir. Ayrıca, prefabrik yapılar taşınabilir özellikleri sayesinde farklı alanlarda kullanılabilirler.27 m² prefabrik acil afet binası, küçük boyutu sayesinde dar alanlarda kullanılabilir. Bu özellik, özellikle şehir merkezlerindeki dar sokaklarda acil durumlarda kullanım kolaylığı sağlar. Bu tür prefabrik yapılar, acil durumlarda hızlı bir şekilde kullanıma hazır hale getirilebilmeleri sayesinde hayat kurtarıcı olabilirler. Ayrıca, düşük maliyetli olmaları nedeniyle de tercih edilen yapı türlerinden biridir.Sonuç olarak, 27 m² prefabrik acil afet binası, hızlı ve etkili bir şekilde acil durumlara yanıt verebilen, taşınabilir ve enerji verimli bir yapı türüdür. Bu tür yapılar, acil durumlarda hızlı bir şekilde kullanıma hazır hale getirilebilmeleri nedeniyle hayat kurtarıcı olabilirler.
27 m² Prefabrik Acil Afet Binası
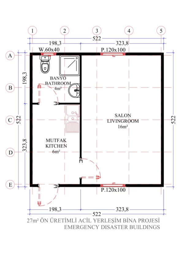
27 m² prefabrik acil afet binası, afet durumlarında hızlı ve güvenli bir şekilde kullanılabilen yapılardır. Bu yapılar, yangın, sel, deprem gibi afet durumlarında insanların barınması, sağlık hizmetleri alması, gıda ve su ihtiyaçlarının karşılanması gibi amaçlarla kullanılır. Prefabrik yapı malzemeleri kullanılarak üretilirler ve montajı oldukça hızlıdır. Genellikle kamplar, şantiyeler, sağlık merkezleri gibi alanlarda kullanılırlar. Ayrıca, prefabrik yapının çevre dostu olması ve geri dönüştürülebilir malzemelerden yapılmış olması da tercih sebepleri arasındadır.






