259 m² çift katlı hafif çelik yapı, günümüzde oldukça popüler hale gelen bir yapı türüdür. Hafif çelik yapılar, düşük maliyetleri, hızlı inşa süreleri ve dayanıklılıkları nedeniyle tercih edilmektedir. Bu tür yapılar, çelik çerçeve ve panellerin kullanımıyla oluşturulur. Bu paneller, önceden üretilmiş ölçülere göre hazırlanır ve inşaat sahasına taşınır. Daha sonra, çelik çerçeve üzerine monte edilir ve yapı tamamlanır.259 m² çift katlı hafif çelik yapı, geniş bir alana sahip olması nedeniyle çeşitli amaçlar için kullanılabilir. Bu tür yapılar, evler, ofisler, depolar, mağazalar ve daha birçok amaç için tercih edilebilir. Hafif çelik yapıların bir diğer avantajı da enerji verimliliğidir. Bu yapıların duvarları, yüksek yoğunluklu yalıtım malzemeleriyle kaplanır ve böylece ısı kaybı minimize edilir. Bu da enerji tasarrufu sağlar ve doğal kaynakların korunmasına yardımcı olur.Sonuç olarak, 259 m² çift katlı hafif çelik yapı, dayanıklılığı, düşük maliyeti, hızlı inşa süresi ve enerji verimliliği nedeniyle tercih edilen bir yapı türüdür. Bu tür yapılar, çeşitli amaçlar için kullanılabilir ve gelecekte de popülerliğini koruyacağı düşünülmektedir.
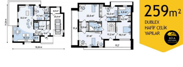
259 M² Çift Katlı Hafif Çelik Yapı
259 m² çift katlı hafif çelik yapı, çelik çerçeve ve panellerin kullanımıyla oluşturulan bir yapı türüdür. Bu yapılar, önceden üretilmiş ölçülere göre hazırlanmış panellerin daha sonra inşaat sahasına taşınmasıyla oluşturulur. Çelik çerçeve üzerine monte edilen paneller, yapıyı tamamlamak için kullanılır. Hafif çelik yapıların düşük maliyetleri, hızlı inşa süreleri, dayanıklılıkları ve enerji verimliliği nedeniyle tercih edilir. Bu tür yapılar, evler, ofisler, depolar, mağazalar ve daha birçok amaç için kullanılabilir.





