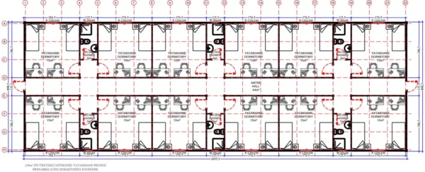
238 m² Prefabrik Yatakhane
238 m² prefabrik yatakhane, daha büyük bir alana sahip olan ve içerisinde yatak odaları, banyo ve tuvaletler bulunan bir prefabrik yapı çeşididir. Bu yapılar genellikle inşaat alanları, şantiyeler, askeri üsler ve kamp alanları gibi geçici konaklama ihtiyacı olan yerlerde kullanılır.






